Tongxian Arts Center
Tongxian Arts Center
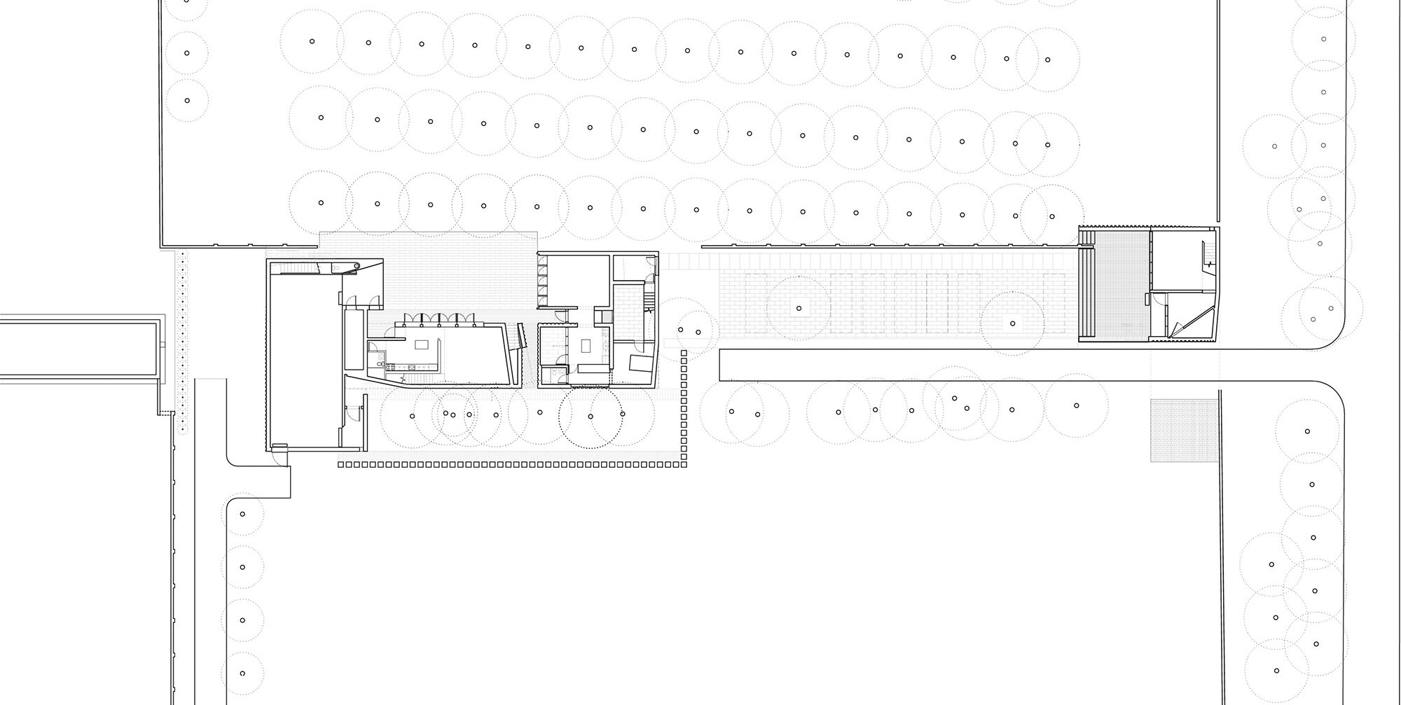
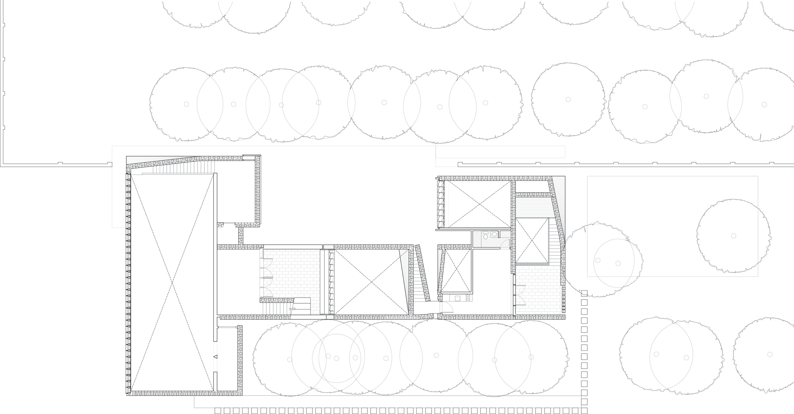
Beijing, ChinaThe Tongxian Art Center is located in a small community thirty miles from downtown Beijing, China. The town of Tongxian has for long been widely recognized as one of the most important centers of contemporary art production in China, and was recently designated as a cultural district by the Chinese Government. This project seeks to provide spaces that are both inspiring for the creative process and supportive of its larger audience. The Tongxian Art Center provides this community of artists with galleries and studio space, which they formerly lacked, as well as residences and studios for visiting international artists. The Art Center holds exhibition spaces, administrative spaces, studio spaces, and small apartments for housing for the artists-in-residence.
Location: Beijing, China
Size: 20,000sf (First Phase built)
Selected Awards:
49th Progressive Architecture Awards, Design Award in Architecture
