Pompano Library and Media Arts Cultural Center
Pompano Library and Media Arts Cultural Center
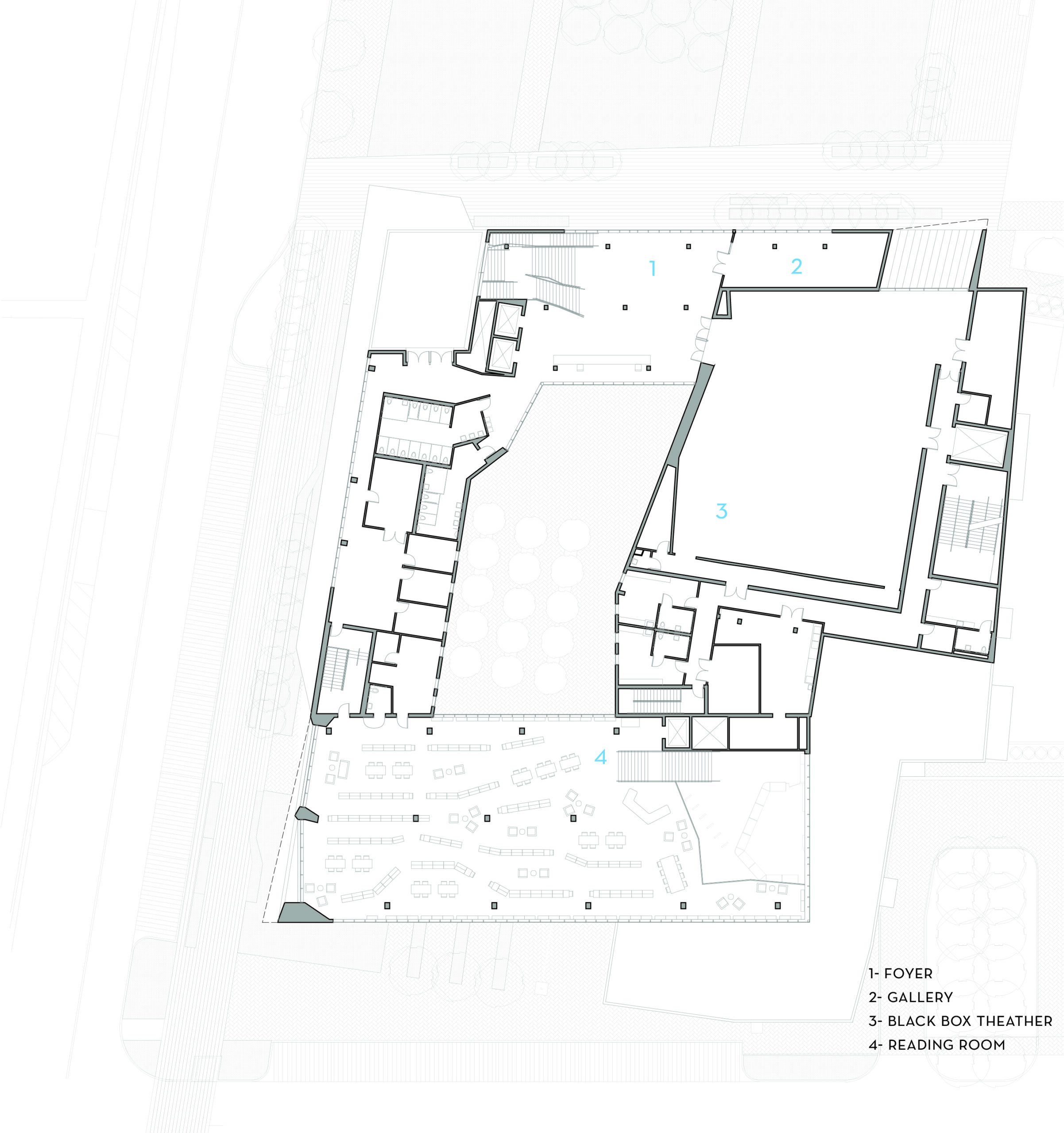
Pompano Beach, FLWeaving together two distinct programs, the Pompano Beach Library and Cultural Center demonstrates designed opportunities for meeting and gathering on one site.
Located at the heart of a community where the average annual income is under $40,000 per family, Pompano Beach Library and Cultural Center was developed to provide broad access to knowledge, technology, and 21st century tools for creativity.
By combining a state-of-the-art public library, with equal parts youth and adult services, and a cutting-edge cultural center, the building’s integration allows for both distinct and joined spaces. This combination gives shape to a teaching and learning center necessary for the public realm’s future.
Achieved LEED Gold Certification.
Location: Pompano Beach, Florida
Size: 25,000sf Public Library; 21,000sf Cultural Center
Architect of Record: Silva Architects
Selected Awards:
AIA FL Merit Award of Excellence for New Work
AIA Miami Design Award








