Macallen Building
Macallen Building
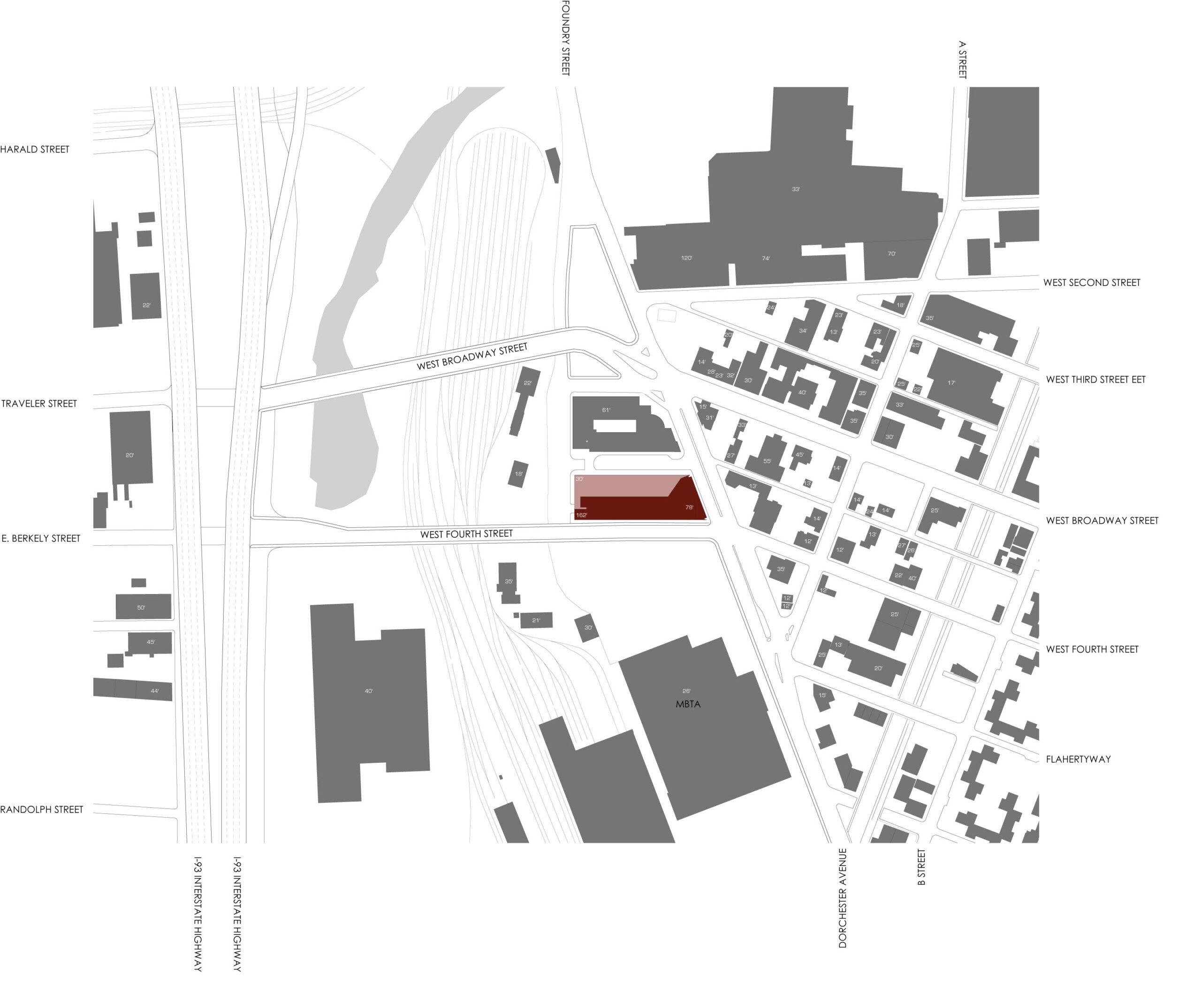
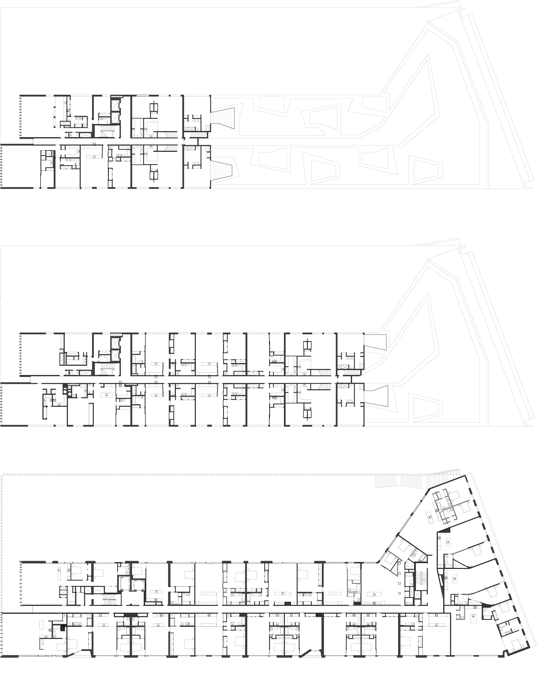
Boston, MAA South Boston icon, the Macallen Building is fully integrated in structure, MEP, and sustainability, and is the first LEED Gold certified multi-family housing in Boston. Occupying a site that mediates between highway off-ramps, a historical residential neighborhood, and an industrial zone, it contributes to the urbanization of South Boston by negotiating different scales and urban configurations to address these contexts. A staggered truss system allows for flexibility in unit types, creating versatility and customization for residents in the 144 units.
The building was awarded the prestigious AIA Housing Award for Multifamily Housing and was named one of the Top Ten Green Projects in 2008 by AIA/COTE.
LEED Gold Certified.
Location: Boston, Massachusetts
Size: 350,000sf
Footprint: 24,500sf
Selected Awards:
The American Institute of Architects (AIA), Institute Honor Award for Architecture
The American Institute of Architects (AIA), AIA Housing Award
American Institute of Architects/Committee on the Environment (AIA/COTE), Top Ten Green Project
AIA New England, Honor Award for Design Excellence
Boston Society of Architects, Honor Award for Design Excellence











