house overtime
house overtime
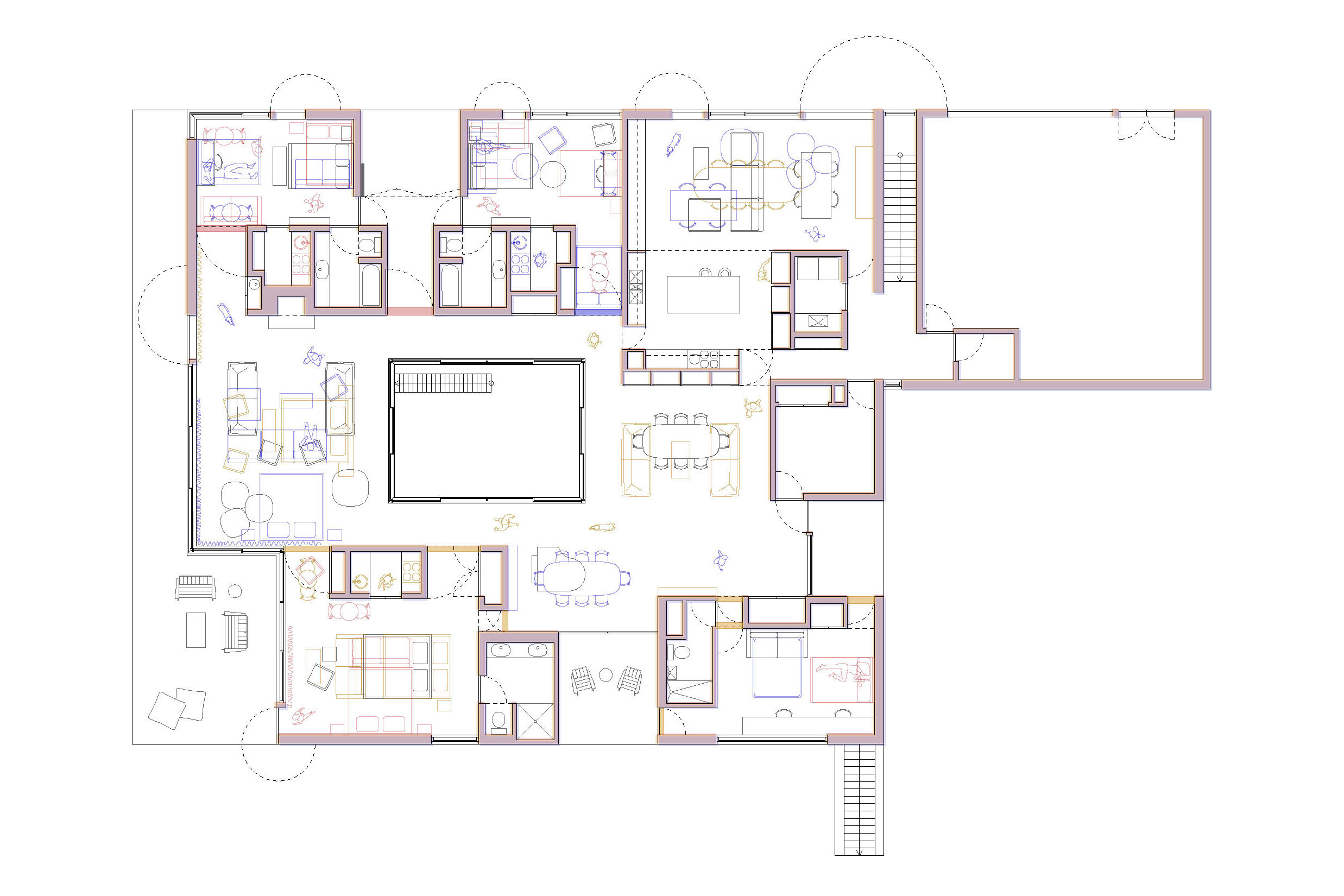
Architecture has a problem with time. Even as a building is completed, the structure is outdated. This single-family home explores the relationship between the longevity of structures and their ever-changing uses. The loose-fit between experience and building is highly evident in any domestic program. In the short-term, our daily routine requires spaces to multitask, from rest to work and from pleasure to chore, from private to communal. In the long term, individual needs change as our bodies grow older, while families take many forms; expand, move away, return, and even fracture. house overtime accepts the prevailing market trend for a three-bedroom home with a two-car garage and guest room, the pre-requisite for a home loan. But within that framework, the house is laid out so that it can transform overtime.


Learning from precedents such as the movable walls in the Schröder House, or the ever-transforming cabinetry in the Maison de Verre, house overtime proposes transforming a home from free plan to poché throughout each day, and from one house to multiple units over the course of its life. Easy to operate, oversized floor-to-ceiling doors are detailed so they blend into the walls; or from another perspective, walls swing or slide in the manner of doors. The distinction between open and closed is purposefully erased. As planes move they change how spaces are defined, oscillating from open space to a cellular configuration. The bathroom cores are designed with permanency in mind, as the house changes around them. Not unlike Mies’ Farnsworth House, these are immovable solid volumes where privacy is paramount. Removed from the perimeter these volumes penetrate through the ceiling seeking light, forming permanent imprints into the otherwise flat plane of the green roof garden.
With the swing of a plane, sections can be cut off from the rest of the home without the expense and hassle of remodeling. Closets are sized and mechanically outfitted so they can be transformed into kitchenettes simply by receiving appliances when the day comes. The house can adapt to an extended family or a single family. After a sudden life change, the house can become a source of income. Or after children grow up and move out, sections of the plan can become rental apartments for the new empty-nester homeowners; and after the original homeowners are gone, the house can transform into two, three, or four separate rental apartments that can accommodate a range of households- from small families to college students. All of these options are possible within the existing building. The future is embedded within the architecture.
Project Team: Monica Ponce de Leon, Clay Montgomery, Kristen Gandy
Drawings: Massimo Giannone, Mariah Smith, Austen Kernodle, Shoshana Torn
Animations: You Wu and Allison Wenner
Model: Kacper Lastowiecki, Sharif Anous and Massimo Giannone