Banq Restaurant
Banq Restaurant
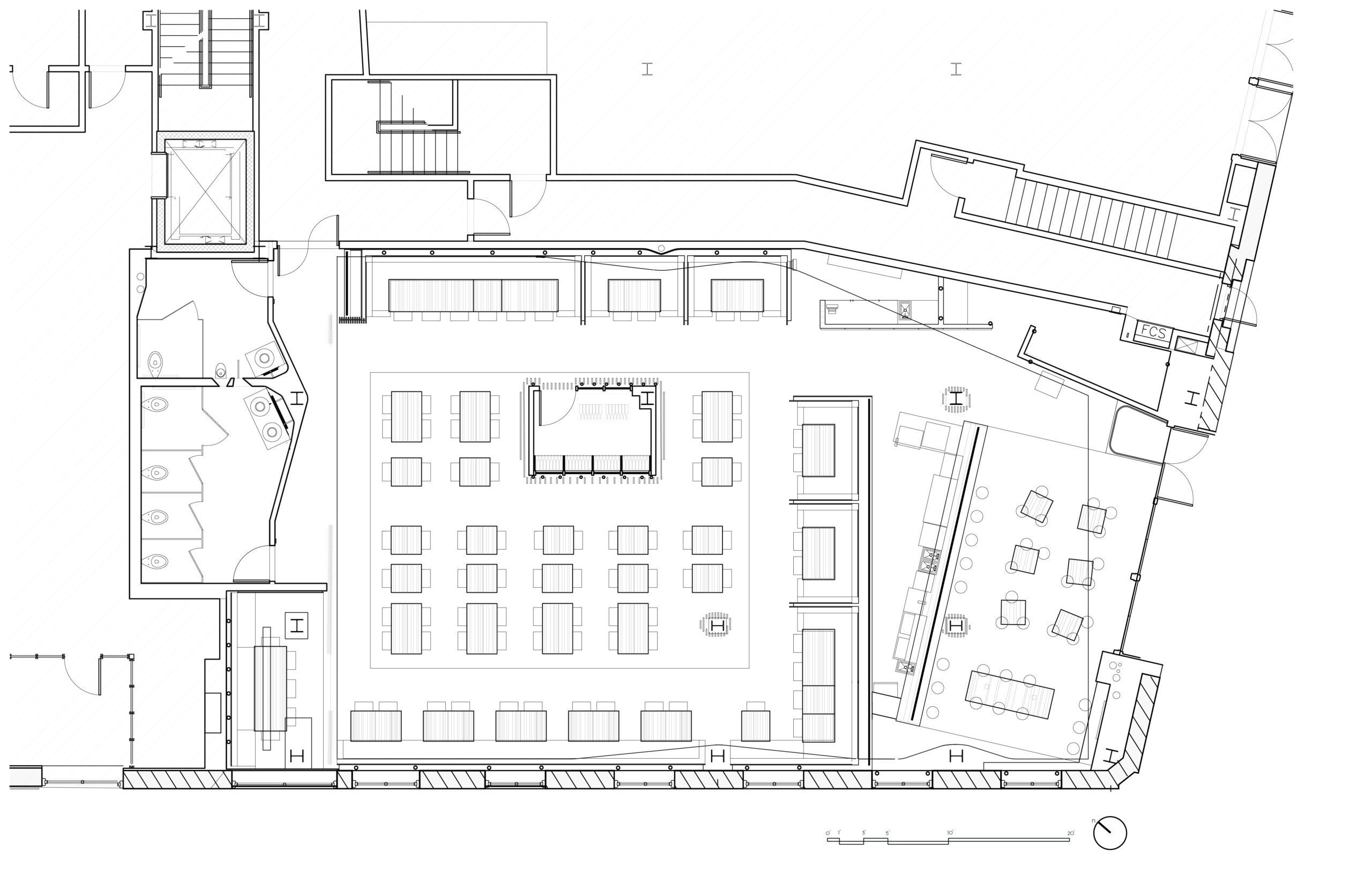
Boston, MassachusettsLocated in the old Penny Savings Bank, Banq Restaurant capitalizes on the spatial and functional peculiarities of the space as a ground for speculation and invention. Building upon ongoing research on digital fabrication, the entire ceiling is covered by a wood-slatted system that encases and conceals the inherited systems, while offering a large canopy under which to dine.
The wood slats are designed as a landscape, undulating in relation to the very equipment they conceal overhead, while encasing the columns in the main hall. The wine storage, in the middle of the hall, serves as another point of support for the ceiling, and acts as a monumental trunk, keeping the canopy aloft. Divided into two segments, the front area on Washington Street is programmed as a bar, while the larger hall behind serves as the dining area. An axial view from the street produces the proscenium from which to view the canopy while lateral views give hints of the structural and mechanical devices being concealed.
Size: 5,000sf
Selected Awards:
Wallpaper Design Awards, Best New Restaurant
Interior Design Magazine, Best of Year Award, Formal Dining Boston
Society of Architects/IIDA/ASID, Interior Architecture/Design Award









